Arama

Sağlık Alanları Ranta Kurban Edilemez

Karaköprü’de sağlık alanlarının konuta dönüştürülmesine tepki büyüyor. CHP Şanlıurfa İl Başkanı Ferhat Karadağ, Karaköprü’de sağlık alanlarının konuta dönüştürülmesine sert tepki göstererek kararın kamu yararına aykırı olduğunu vurguladı.

08/04/2026 15:48 | Son Güncelleme : 08/04/2026 18:13 | Dilara Pasin


Sağlık Alanları Ranta Kurban Edilemez

“BU KARAR KAMU YARARINA AYKIRI”

 

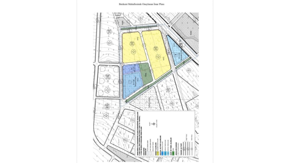
CHP Şanlıurfa İl Başkanı Ferhat Karadağ, Karaköprü’de Kadın Doğum ve Çocuk Hastanesi için ayrılan yaklaşık 101 dönümlük alan ile Batıkent Mahallesi’nde bulunan yaklaşık 52 dönümlük Sağlık Tesis Alanı’nın konuta dönüştürülmesine tepki gösterdi. Karadağ, söz konusu plan değişikliğinin şehircilik ilkelerine ve 3194 sayılı İmar Kanunu’na açıkça aykırı olduğunu ifade etti.

 

SAĞLIK ALANLARININ DÖNÜŞÜMÜNE TEPKİ

 

Karadağ, “Halkın sağlığı için ayrılmış alanların bir gecede konuta dönüştürülmesi kabul edilemez. Bu karar, zaten yetersiz olan sosyal ve teknik altyapıyı tamamen göz ardı etmektedir” dedi.

 

“ŞANLIURFA’NIN GELECEĞİ TEHLİKEYE ATILIYOR”

 

Yapılan plan değişikliğinin kentin geleceğine zarar vereceğini belirten Karadağ, “Bu tür uygulamalar Şanlıurfa’nın planlı gelişimini sekteye uğratmakta ve kent yaşam kalitesini düşürmektedir” ifadelerini kullandı.

 

“BU YANLIŞTAN DERHAL DÖNÜLMELİ”

 

Karadağ, yetkililere çağrıda bulunarak, söz konusu alanların yeniden Sağlık Tesis Alanı olarak planlanması gerektiğini vurguladı.

 

“ŞANLIURFA’NIN HAKKINI SAVUNACAĞIZ”

 

Açıklamasının sonunda Karadağ, “Sağlık alanlarını ranta kurban etmeyeceğiz. Şanlıurfa’nın hakkını her platformda savunmaya devam edeceğiz” dedi.

Beğendim
Bayıldım
Komik Bu!
Beğenmedim!
Üzgünüm
Sinirlendim
Bu içeriğe zaten oy verdiniz.

Yorumlar

Bunlar da ilginizi çekebilir

Dilan'dan mektup var! Dilan Polat, Gazeteci İsmail Saymaz'a neler yazdı neler...

Dilan'dan mektup var! Dilan Polat, Gazeteci İsmail Saymaz'a neler yazdı neler...

Kara para aklama ve vergi kaçırma suçlamalarıyla tutuklanan Dilan Polat’tan mektup geldi. Polat Gazeteci İsmail Saymaz’a mektup yazdı.

2 yıl önce
Kış hastalıkları, geçmeyen öksürük... Baş etmek için bu yöntemi deneyin!

Kış hastalıkları, geçmeyen öksürük... Baş etmek için bu yöntemi deneyin!

Mevsim değişikliği ile birlikte artış yaşanan hastalıkların başında öksürük geliyor. Her yaş grubunda sıkça görülen inatçı öksürüğün çaresi mümkün. İşte o yöntemler...

2 yıl önce
Filipinler'de hükümet ile Komünist parti, yıllardır süren çatışmaları bitirdi

Filipinler'de hükümet ile Komünist parti, yıllardır süren çatışmaları bitirdi

Filipinler'de hükümet ve Filipinler Komünist Partisi, yıllardır süren çatışmaları sona erdirmek için görüşmelere yeniden başlamayı kabul etti.

2 yıl önce